
The Project
Premier Pits was appointed to manufacture and install a wide body pit in to an existing Scania garage. The work involved an 18m long pit with jack and jack store as well as 1no. equipment recess.
The Problem
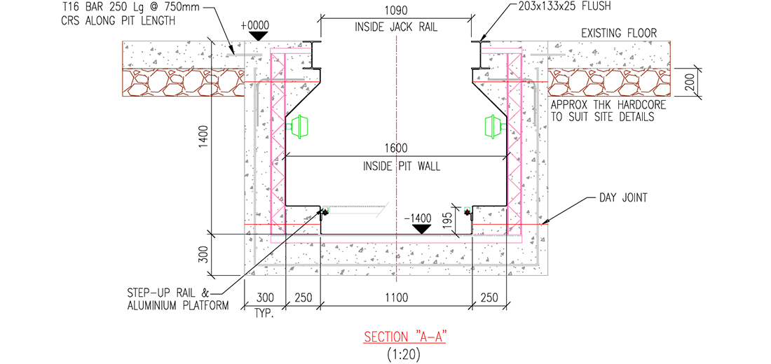
The end user required a garage which was clear of tools and equipment. This was part of an overall garage refurbishment project where the design needed to maximise the space in a smaller older building. With a traditional pit shape, most of the services are kept above ground level on racks within the workshop, as there isn’t enough room in the pit.
Solution
Premier Pits designed and installed a wide body pit taking on board the clients requirements. We engineered the space so that it could take the axel loadings from the vehicles above and created space in collaboration with the garage equipment supplier to use for their equipment.
Outcome
The client and workshop engineers now have a facility which has reduced equipment above ground and makes use of the additional space below ground in the pit.
Client Details
Client: Scania
Location: Swindon
Specification
Manufacturing and installing a 18m wide bodied pit.
